Estates
登録No | 0389 |
分類 | 土地・建物 |
形態 | 売却 |
所在地 | 白糠町西庶路東2条南1丁目1番地18 |
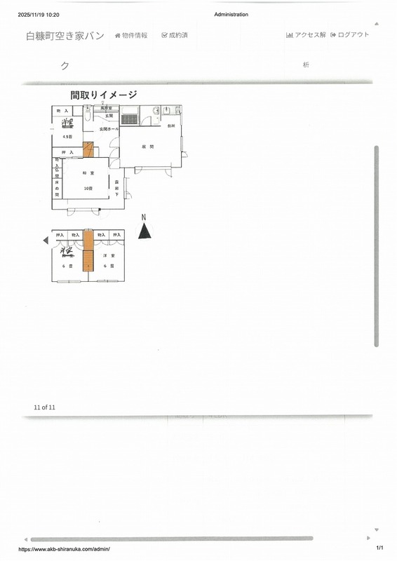
面積 | 土地面積 1番13 278㎡(84.09坪) 1番18 357㎡(107.99坪) 土地総面積 635㎡(192.08坪) 家屋面積 1階 92.61㎡(28.01坪) 2階 25.92㎡(7.84坪) |
構造 | 木造亜鉛鋼板メッキ葺2階建 |
築年 | 昭和57年8月 築43年 |
補修要否 | 一部修正か |
補修費用 | 購入者 |
間取り | 4LDK |
希望価格 | 要相談 |
利用状況 | 令和3年まで居住 |
設備状況 | 電気・上水道・下水道接続済 水洗トイレ 暖房・風呂(灯油)ホームタンクなし 車庫・物置あり 庭あり |
交通 | 西庶路駅0.35km バス停0.35km 役場庶路支所0.9km 病院0.75km 庶路こども園・庶路学園1.5km 高等学校7.4km 郵便局0.65km 公園0.6km コンビニ0.6km スーパー0.35km 消防署白糠支所6.9km 警察署西庶路駐在所0.55km |
備考 | 車庫・物置は基礎コンクリート打設、建物もしっかりしています。 家屋・車庫・物置は1番18の土地に建てられております。 |