Estates
| 登録No | 0394 |
| 分類 | 建物 |
| 形態 | 賃貸 |
| 所在地 | 白糠町東1条南1丁目1番地39 |
| 構造 | 木造亜鉛メッキ鋼板2階立 |
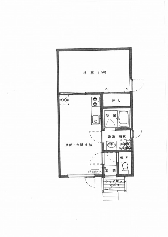
| 間取り | 2LDK |
| 希望価格 | 家賃49,500円 敷金1ケ月 |
| 利用状況 | 令和7年9月まで居住 |
| 設備状況 | 電気・上水道・下水道接続済 水洗トイレ(ウォシュレット付き) 暖房(灯油) 風呂・炊事(プロパンガス) 駐車場1台 物置あり(別棟) |
| 交通 | 白糠駅0.19km バス停0.15km 役場0.35km 病院0.6km 白糠こども園・白糠学園1.7km 高等学校1.4km 郵便局0.31km 公園0.32km コンビニ0.3km スーパー1.8km 消防署白糠支所0.9km 警察署白糠交番0.5km |
| 備考 | 物件は南側より正面向かって東側(右側)1階の部屋です。 保証人必要。 ペット不可。 |